ID CP2803416

Spatiu comercial-Republicii

ID CP2803416

4,500 €

Spațiu comercial de închiriat
Centrul Istoric, Brasov
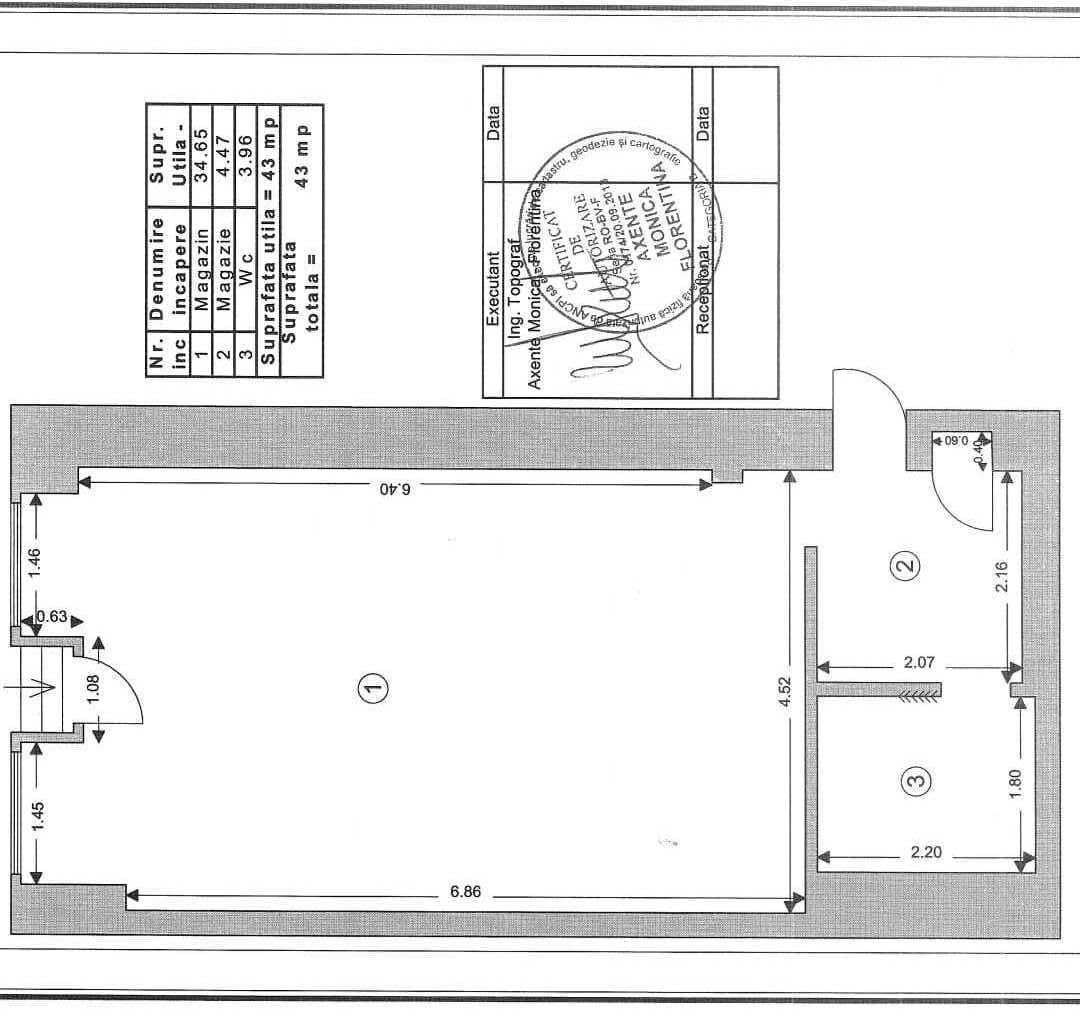
41 mp
1940

Agentia imobiliara Mi Casa va ofera la inchiriat spatiu comercial in suprafata de 41mp,situat pe strada Republicii.

Spatiul are latimea stradala de 4.5m si inaltimea de 3.2m.

Este renovat,are centrala termica,grup sanitar.

Citește mai mult

  • Tip imobil
    Casă / Vilă
  • Trafic pietonal
    Intens
  • Etaj
    Parter
  • Număr camere
    2
  • Număr băi
    2
  • Suprafață construită
    50 mp
  • Suprafață utilă
    41 mp
  • Front stradal
    4.5 m
  • Înălțime interioară
    3.2
  • Disponibilitate
    Imediat
  • Compartimentare spațiu
    Compartimentat
  • An construcție
    1940

Facilități

Apă
Canalizare
Centrală termică
Curent
Gaz
Gelu VARVARICHE
Broker imobiliar

0728907071


Solicită chiar acum o vizionare
Telefon
Sună acum Solicită vizionare
Necesare:

Site-ul nu poate funcționa corect fără aceste cookie-uri. Vezi cookie-urile

Statistică:

Strângem statistici anonime despre voi, vizitatorii unici, pentru a vă îmbunătăți experiența dumneavoastră. Vezi cookie-urile

Marketing:

Pentru a ne promova mai eficient serviciile noastre, folosim cookies pentru a vă identifica și a vă oferi proprietăți și servicii personalizate. Vezi cookie-urile

Acest site folosește cookies, află detalii. Alege ce tipuri de cookies dorești să permitem: